Меню Поиск Разместить Избранное Кабинет

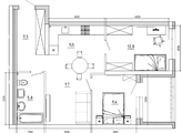
Продается 2-комн. квартира 62.5 м²

Объявление 273430, обнов. 11.02.26
27
8 437 500 ₽ 135 000 ₽/м²
Следить за ценой

Подписка на изменение цены

Мы сообщим вам, если цена объекта изменится
или на почту
Нажимая кнопку «Подписаться» вы соглашаетесь с политикой конфиденциальности
Купить в ипотеку:
АКЦИЯ! СВОя квартира
Скидка до 2% от стоимости квартиры для участников СВО и близких родственников
до 28.02.2026 Подробнее
АКЦИЯ! Год семьи в Атмосфере
-1% за второго и каждого следующего ребенка при покупке жилой недвижимости у застройщика ГК «Атмосфера»
до 28.02.2026 Подробнее
Адрес
Кемерово, Ленинский р-н,
Терешковой, 39Б стр., кв. 228
Новостройка
Срок сдачи
1 кв 2026 — по проекту
Состояние
Остекление
Застройщик
Атмосфера
Общая площадь
62.5 м²
Площадь кухни
18.8 м²
Этаж / всего
5 / 8
Тип дома
Монолит-кирпич
Тип и серия дома
Новой планировки
Санузел
Совмещенный
Окна выходят
На улицу
Ремонт/отделка
Без отделки

Продажа квартиры НАПРЯМУЮ ОТ ЗАСТРОЙЩИКА в ЖК “Уютный квартал” ❗️

ДО КОНЦА ФЕВРАЛЯ ДЕЙСТВУЮТ АКЦИИ: СТАВКА 3,5% НА ВЕСЬ СРОК, РАССРОЧКА НА КВАРТИРЫ, ЗИМНЕЕ КОМБО - СКИДКА ДО 15% ПРИ ПОКУПКЕ КВАРТИРЫ ВМЕСТЕ С ПАРКОВКОЙ/КЛАДОВОЙ И ДРУГИЕ ПРЕДЛОЖЕНИЯ!

Болеe подpобную информацию менеджер предоставит по телефону! Звоните!

ЖК “Уютный квартал” - это УНИКАЛЬНЫЙ проект комплексной застройки. Дома комфорт-класса от 5 до 24 этажей, двор, утопающий в зелени, уютные места для прогулок и зоны отдыха формируют отдельный мир, где каждый почувствует себя счастливым.

НОВИНКА В КЕМЕРОВО! ЭКСКЛЮЗИВНЫЕ варианты квартир: двухуровневые и с собственной террасой

Адрес: ул. Терешковой, 39б

Преимущества:

✔️ 10 домов комфорт-класса

✔️ Уникальная концепция благоустройства

✔️ Школа и детский сад на территории ЖК

✔️ Закрытый двор без машин

❗️ Удобные способы покупки:

Ипотека

Обмен Вашей старой квартиры на новую в ЖК “Уютный квартал”

Материнский капитал

Наличная оплата

Наши менеджеры подберут для Вас лучшее предложение!

Звоните, пишите в чат прямо сейчас и узнавайте больше о всех действующих акциях в ЖК “Уютный квартал”

ГК Атмосфера Номер объявления SD42-273430.

Атмосфера
По вопросам покупки обращаться:
Позвонить
Скажите застройщику, что нашли это объявление на СИБДОМЕ
Написать

Похожие объявления

Не можете найти нужный вариант?

Оставьте заявку на подбор объекта и мы отправим ее трем проверенным нами агентствам недвижимости. Они возьмут все вопросы поиска на себя.
Нажимая кнопку «Отправить заявку» вы соглашаетесь с политикой конфиденциальности.