Меню Поиск Разместить Избранное Кабинет

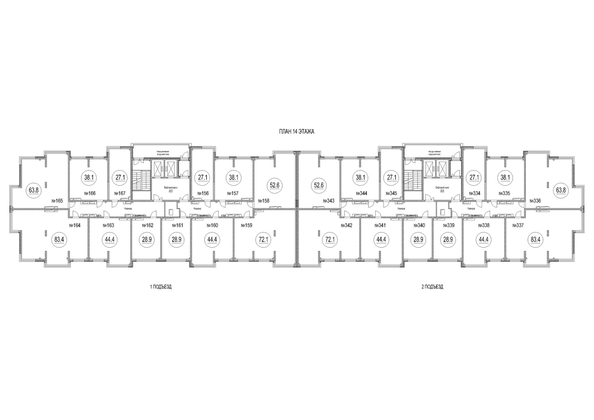
Продается студия, 28.9 м²

Объявление 272014, обнов. 22.10.25
9
3 988 200 ₽ 138 000 ₽/м²
Следить за ценой

Подписка на изменение цены

Мы сообщим вам, если цена объекта изменится
или на почту
Нажимая кнопку «Подписаться» вы соглашаетесь с политикой конфиденциальности
Купить в ипотеку:
Новостройка
Срок сдачи
4 кв 2027 — по проекту
Состояние
Возведение средних этажей
Застройщик
Промстрой
Общая площадь
28.9 м²
Этаж / всего
11-15 / 16
Тип дома
Монолит-кирпич
Тип и серия дома
Новой планировки
Дополнительно
Свободная планировка
Санузел
Раздельный

«Сити-парк» — уютный жилой комплекс, расположенный в перспективном, быстрорастущем районе города. Выгодная локация позволяет легко добраться до любой точки Кемерова, а также выехать загород.

Вы можете выбрать различные планировки: от уютных студий до просторных трёхкомнатных квартир. А благодаря разнообразию планировочных решений, легко найдёте тот самый вариант.

Комплекс состоит из 10 многоквартирных домов с внутренним двором, который закрыт от машин для безопасности и удобства пешеходов.

Здесь же расположены:

- детский сад,
- спортивные и игровые площадки с современным покрытием,
- широкие велодорожки,
- места для спокойного семейного отдыха.

По периметру ЖК для автовладельцев построены парковки с достаточным количеством мест — вы всегда свободно сможете поставить свой автомобиль.

В домах расположены просторные, светлые холлы, установлены скоростные лифты и энергосберегающие приспособления.

Компания "Промстрой" Номер объявления SD42-272014.

Промстрой
По вопросам покупки обращаться:
Позвонить
Скажите застройщику, что нашли это объявление на СИБДОМЕ
Написать

Похожие объявления

Не можете найти нужный вариант?

Оставьте заявку на подбор объекта и мы отправим ее трем проверенным нами агентствам недвижимости. Они возьмут все вопросы поиска на себя.
Нажимая кнопку «Отправить заявку» вы соглашаетесь с политикой конфиденциальности.