Меню Поиск Разместить Избранное Кабинет

Продается 2-комн. квартира, 44.3 м²

Объявление 269442, обнов. 20.10.25
720
5 980 500 ₽ 135 000 ₽/м²
Следить за ценой

Подписка на изменение цены

Мы сообщим вам, если цена объекта изменится
или на почту
Нажимая кнопку «Подписаться» вы соглашаетесь с политикой конфиденциальности
Купить в ипотеку:
Адрес
Кемерово, Ленинский, Терешковой
Новостройка
Срок сдачи
4 кв 2025 — по проекту
Состояние
Подготовка к сдаче
Застройщик
Атмосфера
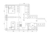
Общая площадь
44.3 м²
Площадь кухни
15.8 м²
Этаж / всего
4 / 15
Тип дома
Монолит-кирпич
Тип и серия дома
Новой планировки
Дополнительно
Свободная планировка
Санузел
Совмещенный
Окна выходят
Во двор
Ремонт/отделка
Без отделки

**Продаётся двухкомнатная квартира в новом ЖК «Уютный Квартал» (Кемерово)**

**Основные данные:**

- **Этаж**: 9-й.
- **Район**: Ленинский (активно развивающийся).
- **Рядом**: Сибирский квартал искусств (в стадии строительства), улица Терешкова (одна из самых протяжённых в городе), трамвайная ветка.

**Инфраструктура ЖК «Уютный Квартал» (концепция «Город в городе»):**

- **Для семьи**: 2 детских сада, новая школа, детские площадки, двор без машин.
- **Отдых и спорт**: парковая зона, зимний каток, фитнес-центр, зона барбекю.
- **Объекты внутри ЖК**: магазины, кафе, офисы, бытовые услуги, 4-звёздочный отель, конференц-зал на 300 мест.

**Условия сотрудничества с АН «Самолёт ПЛЮС»:**

- Помощь в оформлении ипотеки на выгодных условиях.
- Поддержка в подготовке документов.
- Юридическая проверка сделки.
- Опыт работы на рынке недвижимости Кузбасса с 2010 года.

**Контакты:**

- Звоните с **9:00 до 21:00** для просмотра и консультации.

macro-1251654

Сураева Анна Номер объявления SD42-269442.

САМОЛЕТ ПЛЮС- Кемерово
По вопросам покупки обращаться:
Позвонить
Скажите агентству, что нашли это объявление на СИБДОМЕ
Написать

Похожие объявления

Не можете найти нужный вариант?

Оставьте заявку на подбор объекта и мы отправим ее трем проверенным нами агентствам недвижимости. Они возьмут все вопросы поиска на себя.
Нажимая кнопку «Отправить заявку» вы соглашаетесь с политикой конфиденциальности.