Меню Поиск Разместить Избранное Кабинет

ЖК Планета, корпус 3

Готовность 1% Старт продаж Написать Показать телефон

Подписка на изменение цены

Вам придет уведомление об изменениях цен и скидках
или на почту
Нажимая кнопку «Подписаться» вы соглашаетесь с политикой конфиденциальности

монолитный, 20 этажей, комфорт-класс, срок сдачи — 4 кв 2027, готовность 1%. Обновлено 6 февраля 2026 г.
АКЦИЯ! Кладовая в подарок
При покупке однокомнатной квартиры в ЖК Планета — кладовая в подарок.
до 28.02.2026 Подробнее
Город, район
Новокузнецк, Центральный
Стр. адрес
Уфимская, 2 стр.
Тип дома
монолитный
Класс жилья
Комфорт
Этажность
20 этажей
Площади квартир
от 35,2 до 78,9 м²
Высота потолков
2,7 - 3,6 м
Квартир на этаже
12
Срок сдачи
4 кв 2027 (проект)
Состояние
подготовка площадки
Застройщик
Удобно семьям с детьми (школы и детсады в радиусе 500 м)
Кладовые помещения 3,3 - 7,6 м²
Предчистовая отделка

О жилом комплексе Планета, корпус 3

Жилой комплекс «Планета»  находится на улице Уфимская в городе Новокузнецке Кемеровской области. В ЖК «Планета» входят 5 монолитных домов высотой 20  этажей.

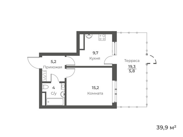
ЖК «Планета», корпус 3 (строительный адрес: Уфимская, 2) – одноподъездный дом комфорт-класса с квартирами от компактных 1-комнатных квартир 35,2 кв.м до просторных 3-комнатных 78,9 кв.м.

Преимущества ЖК Планета:

  • квартиры в новостройке комфорт-класса;
  • высота потолка 2,7 - 3,6 метров;
  • панорамные окна;
  • застекленные лоджии;
  • кладовые на каждом этаже;
  • квартиры с террасами на 1 и 2 этажах;
  • колясочная с мойкой на 1-м этаже;
  • 4 скоростных лифта;
  • сквозные подъезды - с выходом на парковку и во двор;
  • витражное остекление и дизайнерская отделка входных групп;
  • вечерняя подсветка фасадов домов; закрытый двор;
  • детские сады и школы в пешей доступности; запланировано строительство собственного детского сада на территории ЖК Планета.

 

ЖК Планета — это комфортные монолитные дома высотой 20 этажей. Дворовая территория нового жилого комплекса облагорожена и благоустроена: здесь продуманы детские площадки и предусмотрены прогулочные аллеи, двор «закрытый», окружён забором. 

Застройщик: ООО СЗ НК.

СЗ Новый квартал
Отдел продаж застройщика:
Позвонить застройщику
Скажите застройщику, что нашли эту информацию на СИБДОМЕ
Написать
Информация обновлена 6 февраля 2026

Разрешение и проектная декларация

  • Проектные декларации на сайте наш.дом.рф

Квартиры в ЖК Планета, корпус 3 от застройщика

Комнаты:

В карточку новостройки попадают только платные объявления со статусами: Приоритетное объявление, VIP - объявление, Спецобъявление, Горячее объявление. Оплатить объявление можно online сразу при его размещении. В этом случае, ваше объявление разместиться и в разделе Недвижимость и в Карточке новостройки.

Разместить объявление

Если вы застройщик, подрядчик или агентство недвижимости, то разместить здесь свои объявления можно отправив заявку на подключение и оплатив месячный тарифный план.

Прайс-лист для застройщиков и агентств недвижимости



Остальные дома Планета

Застройщик СЗ Новый квартал Все новостройки застройщика >
Планета, корпус 2
Уфимская, 4. Сдан дек. 2025
≈120 м
23 квартиры
В продаже 23 квартиры
от 9 340 936 до 9 986 000 ₽

Рядом с ЖК Планета